Посудомоечная машина купольная Smeg SPH505SL
Посудомоечная машина купольная Smeg SPH505SL - купольная ПММ с водоумягчителем и системой HTR
Посудомоечная машина купольная SPH505SL производства Smeg (Италия) - профессиональная купольная посудомоечная машина для мойки тарелок, чашек, стаканов, столовых приборов и гастроёмкостей GN 1/1 на предприятиях общественного питания. Модель оснащена электронной панелью управления, встроенным водоумягчителем непрерывного цикла, системой HTR, сливной помпой и 5-ступенчатой фильтрацией. Это решение для заведений с высокой проходимостью, где важны надёжность, скорость и защита от накипи.
Особенности модели Smeg SPH505SL:
- Встроенный водоумягчитель - непрерывная защита бойлера и гидросистемы от образования накипи;
- Система HTR - атмосферный бойлер и насос ополаскивания для качественной сушки посуды;
- 5-ступенчатая система фильтрации - улучшенная очистка воды и стабильная работа бака;
- 3 автоматические программы мойки - оптимальный выбор цикла под разную загрузку;
- Функции Extra Rinse и Clean Water Cycle - дополнительное ополаскивание и очистка воды в баке.
Основные технические характеристики Smeg SPH505SL:
- Тип: купольная посудомоечная машина;
- Серия: Ecoline / Comfort;
- Размер кассеты: 500 × 500 мм;
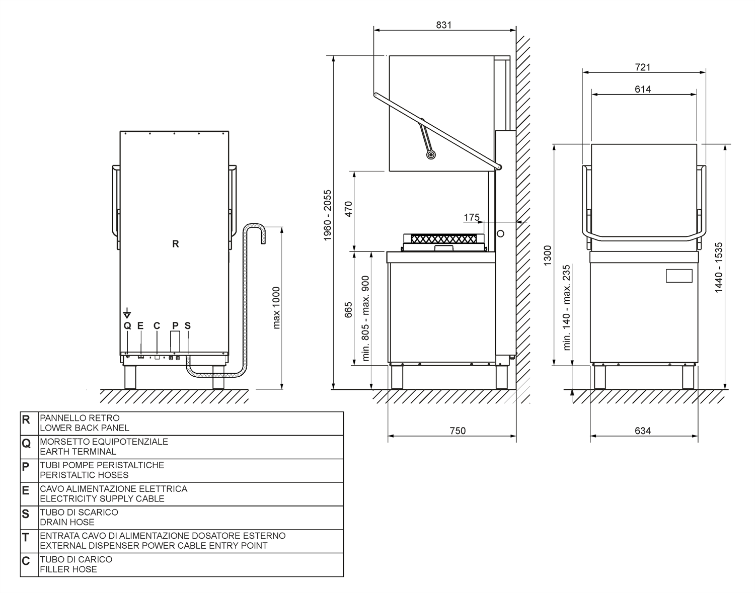
- Высота рабочего проёма: 470 мм;
- Максимальная высота с открытым куполом: 2055 мм;
- Производительность по кассетам: 40 / 24 / 15 шт./ч;
- Производительность по тарелкам: 720 шт./ч;
- Расход воды за цикл: 3,2 л;
- Объём моечного бака: 14 л;
- Объём бойлера: 10 л;
- Класс защиты: IPX4;
- Вес без упаковки: 108 кг;
- Вес с упаковкой: 124 кг;
- Габариты (Ш×Г×В): 634 × 750 × 1440 / 2055 мм;
- Габариты в упаковке: 700 × 900 × 1700 мм.
Программы мойки:
- Короткая программа: бойлер 87°C / бак 58°C - 90 сек.;
- Средняя программа: бойлер 87°C / бак 58°C - 150 сек.;
- Длинная программа: бойлер 87°C / бак 58°C - 240 сек.;
- Программы самоочистки - автоматическое обслуживание камеры;
- Слив и автоматическая мойка бака - предусмотрены.
Конструкция и материалы:
- Корпус и моющие рукава: нержавеющая сталь AISI 304;
- Моечный бак: цельнотянутый, из нержавеющей стали AISI 304;
- Конструкция бака: частичная двойная стенка;
- Фильтр моечного бака: нержавеющая сталь;
- Конструкция купола: одинарные стенки;
- Задняя панель: окрашенная;
- Регулируемые по высоте ножки: есть.
Управление и дополнительные функции:
- Электронная панель управления - отображение температуры мойки и ополаскивания;
- Дисплей: 4 цифры;
- Индикатор отсутствия соли - контроль состояния водоумягчителя;
- Ручная диагностика - быстрый контроль состояния машины;
- Stand-by - экономия энергии в режиме ожидания;
- Автоматический старт - удобный запуск цикла.
Подключение и рабочие параметры:
- Подключение: к холодной воде;
- Электрическое подключение по умолчанию: 400 В / 16 A / 9,7 кВт / 50 Гц;
- ТЭН моечного бака: 2200 Вт;
- Сопротивление: 9000 Вт;
- Помпа мойки: 700 Вт;
- Температура воды на входе по умолчанию: 8°C;
- Максимальная температура поступающей воды: 60°C;
- Давление воды на входе: 100-1000 кПа;
- Максимальная высота точки слива: 1000 мм.
Совместимость и форматы загрузки:
- Посуда: тарелки, чашки, стаканы, столовые приборы;
- Гастроёмкости: GN 1/1 (530 × 325 мм);
- Кассеты: стандарт 500 × 500 мм.
Комплект поставки:
- Кассета для тарелок PB50D01;
- Кассета с плоским дном PB50G02;
- Кассета для столовых приборов PHOOS02;
- Заливной шланг 3 м;
- Сливной шланг 2 м.
Где рекомендуется использовать:
- Рестораны и столовые - потоковая мойка посуды и гастроёмкостей;
- Кафе и кофейни - стабильная мойка чашек, стаканов и приборов;
- Профессиональные кухни - работа с крупной посудой и гастроформатом GN 1/1;
- Объекты с жёсткой водой - встроенный водоумягчитель снижает риск образования накипи.
Купить купольную посудомоечную машину Smeg SPH505SL - значит получить профессиональную купольную ПММ с встроенным водоумягчителем, системой HTR и 5-ступенчатой фильтрацией. Модель обеспечивает стабильную работу на потоке, поддерживает мойку гастроёмкостей GN 1/1 и расходует 3,2 литра воды за цикл. Это надёжное решение для ресторанов, столовых, кафе и профессиональных кухонь, где важны производительность, гигиена и долговечность оборудования. Доставка по всей России, официальная гарантия производителя Smeg.
Часто задаваемые вопросы:
Как купить
Оформление заказа
- Выберите товар и нажмите «В корзину».
- Перейдите в корзину и нажмите «Оформить заказ» или воспользуйтесь кнопкой «Купить в 1 клик» прямо со страницы товара.
- При оформлении укажите полное ФИО, телефон и e-mail контактного лица.
- Дождитесь звонка менеджера — он подтвердит наличие товара и сроки поставки.
Оплата
Физическим лицам:
- Банковская карта.
- СБП (Система быстрых платежей) — оплата по QR-коду через мобильное приложение банка, без комиссии.
Юридическим лицам и ИП:
- Безналичный расчёт по счёту — выставляем счёт и все необходимые закрывающие документы (УПД).
Доставка
Самовывоз из ПВЗ — бесплатно.
Доступен в Москве, Санкт-Петербурге и Тольятти. Сроки перемещения заказа уточняет менеджер.
Доставка до адреса — от 1 000 руб.
По Москве и ближайшему Подмосковью. Точные сроки и стоимость уточняйте у менеджера.
Доставка в регионы РФ осуществляется транспортными компаниями.
Доставка до терминалов Деловые Линии, ПЭК, СДЭК в Москве — бесплатно. Доставка до терминалов других ТК оплачивается по тарифам доставки по Москве.
Все сведения о товарах, размещённые на сайте, носят исключительно информационный характер и не являются публичной офертой, определяемой положениями ч.2, ст. 437 Гражданского кодекса Российской Федерации. Производитель вправе менять технические характеристики, внешний вид, комплектацию и страну производства любой модели без предварительного уведомления. Уточняйте характеристики у наших менеджеров перед оформлением заказа.
